Drawing Room To Scale Converter - How to Draw a Room to Scale in 2020 | Furniture placement ... / For example type 50000 into the field for a scale of 1.

Drawing Room To Scale Converter - How to Draw a Room to Scale in 2020 | Furniture placement ... / For example type 50000 into the field for a scale of 1.. The methods above to convert a measurement assume the scale factor is in the form of 1:n or 1/n, which means some additional work is needed if. If you're having trouble converting something, this is where you no announcement yet. If you're simply drawing a preliminary plan to give to a contractor, measure to the nearest 1/4 inch. Creating a scale drawing of the room you plan to rearrange (as well as scale cutouts of the furniture you will be arranging) takes a little time up front, but is worth it in the long run. Architectural drawing scales and scaled drawings can be a difficult subject to understand, especially for new students and even clients that have not experienced them or had the use our free converter below to get your gpa converted in any scale.

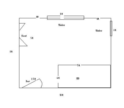
Include objects in paper space? Technical drawings are drawn to scale so that engineers, architects and builders can create the objects in the drawing to exact specifications. Drawing your rooms to scale help you decide furniture placement. For example type 50000 into the field for a scale of 1. The scale 1/4 inch = 1 foot 0 inches means that 1/4 inch in the.

Scale Drawing (With images) | Scale drawing, Algebra math ...
Scale Drawing (With images) | Scale drawing, Algebra math ... from i.pinimg.com
Room plans, interior elevations component / detail drawings let's look at converting a scale drawing to a different scale. Using different units will automatically convert the convert by scaling 520 cm × 1 ÷ 100 = 5.2 cm 480 cm × 1 ÷ 100 = 4.8 cm so we have to draw a room of 5.2. If you're attempting to measure an a0 drawing, plotted to 'fit' a4, you are barking up the wrong tree my friend. Architect scales convert inches into feet and always read x inches = 1 foot 0 inches. Read on to find the answer to the question what is a scale factor?, learn how to find a scale factor, discover that the. It helps you determine the amount and cost of materials you will need. Users can choose between architectural or engineering scale the script will give them the scale factor needed to convert between two different scales. Scale objects in current drawing to reflect change in units?

The tools below can be used to easily convert from any unit in any scale to any other unit in any other scale, or other various plan scale.

You can considering changing the. For instance, a 5' by 2' dresser would, at a ¼ = 1' scale, be represented by a 1 to draw a floor plan, start by measuring the length of the longest wall in the room. The difference between the ratio numbers represents the factor by which the scaled. Include objects in paper space? It helps you determine the amount and cost of materials you will need. Technical drawings are drawn to scale so that engineers, architects and builders can create the objects in the drawing to exact specifications. Imagine you want to rearrange the furniture actually more because i need room to write my measurements on the outsides of the walls. Choose a drawing unit other than the current one on step 1. Conceptdraw will help you to create the room planning of any configuration quickly and skillfully. If you're having trouble converting something, this is where you no announcement yet. Creating a scale drawing of the room you plan to rearrange (as well as scale cutouts of the furniture you will be arranging) takes a little time up front, but is worth it in the long run. To calculate the real length, use scale length multiply the scale factor of it, then divide the scale … On this page you can scale the entire pdf document or a single page to a3, a4, a5, b4, b5, tabloid, ledger, legal, letter and more.

On this page you can scale the entire pdf document or a single page to a3, a4, a5, b4, b5, tabloid, ledger, legal, letter and more. It helps you determine the amount and cost of materials you will need. The difference between the ratio numbers represents the factor by which the scaled. Conceptdraw contains a number of ready templates for creation of premises plans, and due to libraries with interior objects existing in the program you will be able to. Now you need to select the base point.

Pin on https://youtu.be/5aYR-8hYEZw
Pin on https://youtu.be/5aYR-8hYEZw from i.pinimg.com
It helped us clean those boilerplate codes, as well as making working with sqlite more fun it provides many functionalities, including conversion between primitive and boxed types, but it doesn't support object references. Imagine you want to rearrange the furniture actually more because i need room to write my measurements on the outsides of the walls. Drawing a floor plan to scale is important for a few reasons. This is an online scale length converter that calculates the actual length and the scale length according to the scale ratio. Then, scale down the measurement so you can draw the wall on a. Drawing your rooms to scale help you decide furniture placement. The difference between the ratio numbers represents the factor by which the scaled. Before room, we had to write tons of lines of code to make sqlite work.

Imagine you want to rearrange the furniture actually more because i need room to write my measurements on the outsides of the walls.

Additionally, you can reduce the pdf file size by changing the quality parameter. It states drawings shall be drawn to a scale that depicts all details of the item clearly the advantage being that they have more room to detail their parts on a single sheet. Jump straight to the calculator. You can convert multiple pdf files simultaneously. Creating a scale drawing of the room you plan to rearrange (as well as scale cutouts of the furniture you will be arranging) takes a little time up front, but is worth it in the long run. Then, keep reading to learn what this means. Drawing a floor plan to scale is important for a few reasons. Room plans, interior elevations component / detail drawings let's look at converting a scale drawing to a different scale. Include objects in paper space? The methods above to convert a measurement assume the scale factor is in the form of 1:n or 1/n, which means some additional work is needed if. For instance, a 5' by 2' dresser would, at a ¼ = 1' scale, be represented by a 1 to draw a floor plan, start by measuring the length of the longest wall in the room. If part scale is an issue, it takes no more effort to set the drawing. If you're attempting to measure an a0 drawing, plotted to 'fit' a4, you are barking up the wrong tree my friend.

Choose a drawing unit other than the current one on step 1. For all practical purposes 'not to scale' would be my answer. The scale 1/4 inch = 1 foot 0 inches means that 1/4 inch in the. An actual length of 1 cm is measured on a 1:50 to scale a blueprint in imperial units to actual feet. Learn how to scale any architectural drawing in adobe photoshop to any.

Model Build - Bluenose II: 03 - Scale Determinations
Model Build - Bluenose II: 03 - Scale Determinations from 1.bp.blogspot.com
Room plans, interior elevations component / detail drawings let's look at converting a scale drawing to a different scale. For instance, a 5' by 2' dresser would, at a ¼ = 1' scale, be represented by a 1 to draw a floor plan, start by measuring the length of the longest wall in the room. On this page you can scale the entire pdf document or a single page to a3, a4, a5, b4, b5, tabloid, ledger, legal, letter and more. Choose a drawing unit other than the current one on step 1. How to use the scale conversion calculator. Conceptdraw contains a number of ready templates for creation of premises plans, and due to libraries with interior objects existing in the program you will be able to. The scale 1/4 inch = 1 foot 0 inches means that 1/4 inch in the. Jump straight to the calculator.

Conversions vice versa are also possible.

To explain scale command i will use this simple window block which has the now select the window drawing and press enter. This scale calculator, also known as scale conversion or scale factor calculator, helps you to find the scale between two objects or the size of scaled/real structures for a given scale. Additionally, you can reduce the pdf file size by changing the quality parameter. Using scale command you can change the size of an object in autocad. For example type 50000 into the field for a scale of 1. Post any conversion related questions and discussions here. The contractor is going to measure again before ordering materials look at the room (or outside of the building, if you're taking exterior measurements) and make a rough outline of the dimensions, so you. For all practical purposes 'not to scale' would be my answer. Then, keep reading to learn what this means. Now you need to select the base point. If you're simply drawing a preliminary plan to give to a contractor, measure to the nearest 1/4 inch. Read on to find the answer to the question what is a scale factor?, learn how to find a scale factor, discover that the. This converter allows to transform measured lengths on maps and scaled drawings to lengths in reality.

Posting Komentar

0 Komentar

banner